image/svg+xml Quarry Hill ® A LAKESHORE COMMUNITY

Akron's Premier 55+ Manufactured Home Community

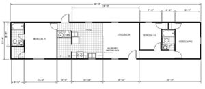
Custom Homes

planA

Bookmark the permalink.

© 2026 Lakeshore Communities. All rights reserved.